首页 -> 公司周刊 -> 极简风格设计案例
极简风格设计案例
8014   阅览8051    发布时间:2022-01-07 09:33:07

极简风作为当下主流的装修风格,相信很多人都会被其简约、利落、干净的气息所吸引。尤其是对于追求断舍离生活方式的人来说,更是会将家里的装修风格定位成极简风格。当然,极简也并不代表简单,而是以最纯粹的方式,让空间与居住者的情绪产生呼应。

比如本期案例中的屋主,就是以极简风来定位空间风格的。甚至为了追求极致的极简主义,还以大量留白的方式,将家里装修得一尘不染,看起来既高级又很有质感。

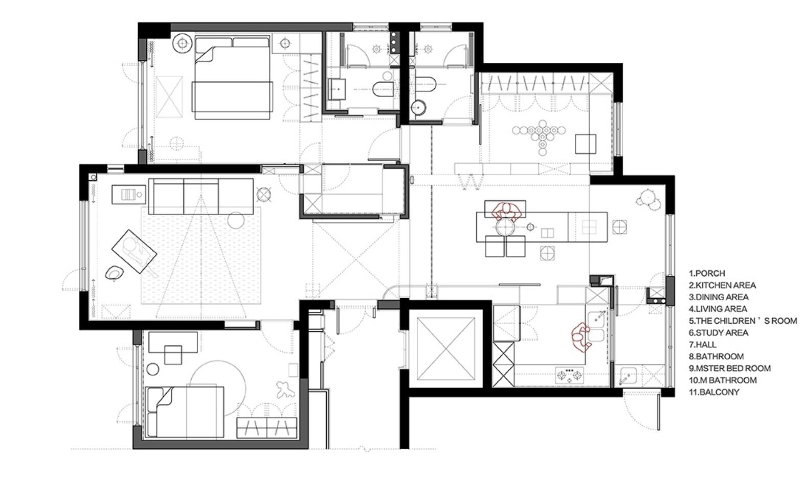
平面结构图

为追求极简主义,她将新家装修得一尘不染,完工后太高级了


本案建面130㎡,原户型是标准的三室两厅两卫格局,不过考虑到目前只有屋主夫妇两个人居住,所以整体是以两居室的功能来布局的。主要调整的位置有以下几处。

1、客厅旁边增加衣帽间,在提高主卧收纳能力的同时,明确入户玄关区。

2、餐厅与旁边的房间打通,并采用柜体来隔断,让空间形成隔而不断的结构。

3、南阳台纳入室内,北阳台一分为二,在提高室内面积的同时,解决日常的洗衣需求。

玄关

为追求极简主义,她将新家装修得一尘不染,完工后太高级了


当主卧增加一个衣帽间之后,也自然为入户玄关形成了一个端景墙。墙面采用白色的木饰面以及水泥漆来设计,在呼应现代几何元素的情况下,也在视觉上营造出了一种简约、沉稳的高级感。同时,大量留白式的处理手法,也赋予了空间更多的思考与情绪。

客厅

为追求极简主义,她将新家装修得一尘不染,完工后太高级了


来到客厅,大面积的白与灰碰撞,在冷静中又做到了克制。顶面拉平并做无主灯设计,地面铺上灰色的地砖,既做到了简约大气,又不失立体的层次。而当外面的南阳台纳入进来后,也赋予了视觉更多的延伸性。

为追求极简主义,她将新家装修得一尘不染,完工后太高级了


沙发墙拆掉可拆掉的非承重墙体,并以内嵌式设计一组储物柜,不仅让空间面积得到了充分利用。部分柜体采用开放式来处理,也在视觉上打破了单调。而灰色的沙发配置,也再次彰显出了利落的几何元素。

为追求极简主义,她将新家装修得一尘不染,完工后太高级了


电视背景墙同样以留白为主,虽说看起来有一些单调了,但当画框电视机安装上,并在底部内嵌一台电子壁炉后,却也在视觉上做到了平衡,并且还起到了调节室内温度的作用。同时,给墙角安装上极窄的踢脚线,看起来也相当的简洁。而为了保持统一,旁边的儿童房门也做了隐形设计。

为追求极简主义,她将新家装修得一尘不染,完工后太高级了


餐厅

为追求极简主义,她将新家装修得一尘不染,完工后太高级了


进门右手边就是餐厅,整面墙的储物柜设计,充分保障了空间的收纳能力。同时,考虑到该柜体兼具了鞋柜的收纳功能,转角处采用弧形元素来设计,还间接性让空间动线更加流畅、自然了。当然,一门到顶的柜体结构,也在视觉上起到了拉伸层高的作用。

为追求极简主义,她将新家装修得一尘不染,完工后太高级了


当北卧室与餐厅打通之后,同样用储物柜代替了隔断,并在右侧增加了长虹玻璃。这样一来,既再次提高了空间的收纳能力,又在视觉上做到了隔而不断。黑色餐桌居中而设,在与空间形成对称的情况下,又让空间形成了洄游动线,非常灵活。

为追求极简主义,她将新家装修得一尘不染,完工后太高级了


功能间

为追求极简主义,她将新家装修得一尘不染,完工后太高级了


当北卧室改成功能间之后,则用窄边框移门做了半开放式设计,从而让空间实现了自由开合。临窗设计的书桌,采光度极佳。整面墙的衣柜设计,则补充了收纳功能。当然,该空间也可以作为瑜伽、休闲来使用。

为追求极简主义,她将新家装修得一尘不染,完工后太高级了


主卧室

为追求极简主义,她将新家装修得一尘不染,完工后太高级了


来到主卧,相较于其它空间的大面积留白,这里则采用等比例的方式,运用到了大量的灰色元素。这样既可以与外面形成呼应,又可以加深空间氛围,从而让屋主夫妇有一个静谧、沉稳的睡眠环境。

为追求极简主义,她将新家装修得一尘不染,完工后太高级了


为追求极简主义,她将新家装修得一尘不染,完工后太高级了


一体化的床头背景墙设计,再一次秉持的极简风元素,看起来既干净又很有层次。隔层结构的床头柜,以及内凹造型的设计,则与餐厅的功能柜做到了呼应。

为追求极简主义,她将新家装修得一尘不染,完工后太高级了


主卧看向功能间的视角,虽说空间已经规划出了独立的衣帽间,但床头侧面还是增加了一组衣柜,以便后期拥有充足的收纳能力。当然,对于追求断舍离生活方式的屋主来说,足够的收纳空间也是必须的。因为只有这样,才能让空间永远做到一尘不染。

为追求极简主义,她将新家装修得一尘不染,完工后太高级了


本期就分享到这里,对于一套以极简为主的案例,整体看下来还是挺干净的。尤其是空间以灰白为主基调来搭配后,更是处处都彰显出了一抹高级的格调。不知道你们家装修会选择什么样的装修风格呢?


上一篇

宁静致远——治愈系中式风

下一篇

极致美学——侘寂风